高気密・ZEH水準高断熱仕様【断熱等級5】MIRAIE KYOTANABE 学研都市大住
登録日/2025年11月07日

★
全7区画
概要
土地価格
1264.00万円〜1464.00万円  
 
- 学校区
-
- 小学校区
- 薪小学校 距離:640m
- 中学校区
- - 距離:-
- 最寄駅
-
- 片町線
- 大住駅徒歩13分  
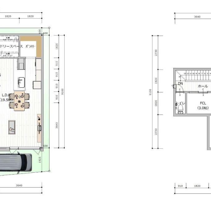
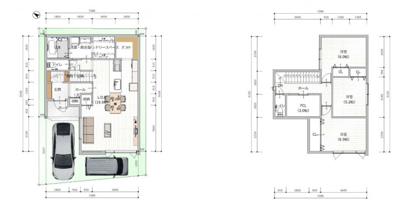
- 土地面積
- 100.76m2〜126.27m2 
- ロケーション
-
JR片町線『大住』駅徒歩13分 
- 公正取引協議会
加盟事業者 -
- 加盟
- 所属団体
-
- 一般社団法人山城青年会議所
京田辺市商工会
(公社)京都府宅地建物取引業協会
(公社)近畿地区不動産公正取引協議会
- 一般社団法人山城青年会議所
区画図































新発売◇高気密×ZEH高断熱が標準仕様◇モデルハウスがご覧いただけます!